PNRR: AZIENDA SANITARIA LOCALE DI MATERA, A CHE PUNTO SIAMO - Azienda Sanitaria locale di Matera

Notizie - Azienda Sanitaria locale di Matera

PNRR: AZIENDA SANITARIA LOCALE DI MATERA, A CHE PUNTO SIAMO

 

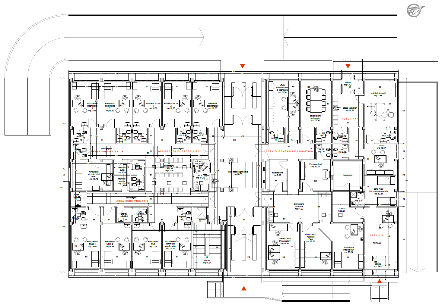
Sei case di comunità, due ospedali sicuri, due ospedali di comunità e due Centrali operative territoriali (COT) sono le opere strutturali che l’Azienda Sanitaria Locale di Matera realizzerà sul proprio territorio grazie ai finanziamenti ottenuti dal PNRR (Piano Nazionale di Ripresa e Resilienza). L’ASM è impegnata a dare attuazione al Contratto istituzionale di sviluppo (CIS) che realizza gli interventi della “Missione 6 Salute” del PNRR afferenti al territorio della provincia di Matera. La Conferenza dei Sindaci, tenutasi a febbraio dello scorso anno, ha definitivamente confermato la localizzazione delle sedi delle Case e degli Ospedali di Comunità e delle COT. 

Le Case Comunità Hub, aperte 24 ore al giorno, 7 giorni su 7, saranno quelle di Irsina, Montescaglioso e Montalbano Jonico. Le Case Comunità Spoke aperte 12 ore al giorno e 6 giorni su 7, sono previste a Ferrandina, Tursi, Garaguso.  

Gli Ospedali di Comunità che saranno istituiti a Stigliano e Tinchi sono strutture sanitarie di ricovero della rete di assistenza territoriale che svolgono una funzione intermedia tra il domicilio e il ricovero ospedaliero.  

A questi interventi si aggiungono quelli relativi alla misura PNRR denominata “Verso un ospedale sicuro e sostenibile” che prevedono miglioramenti sismici a Stigliano e Tricarico. 

Grazie ad una specifica istruttoria a cura dei Responsabili Unici dei Procedimenti dell’ASM, al finanziamento complessivo iniziale di circa 20milioni e 400mila euro si è aggiunto un ulteriore finanziamento di circa 1,5 milioni di euro derivante dal Fondo Opere Indifferibili (FOI 2022) destinato a compensare i maggior costi provenienti dall’incremento dei prezzi dei materiali da costruzione, in modo da garantire una maggiore tranquillità nel portare a termine le opere senza ricorrere a varianti o ridimensionamenti del progetto iniziale. 

Le Case di Comunità verranno realizzate negli immobili esistenti già sedi degli attuali Distretti Sanitari, pertanto non è previsto ulteriore consumo di suolo anche nell’ottica della sostenibilità ambientale degli interventi. Si è scelto dunque, come requisito realizzativo imprescindibile, l’adeguamento funzionale o comunque il miglioramento sismico delle strutture esistenti. Per la gran parte degli interventi è in fase di perfezionamento l’attività di redazione dei Progetti di Fattibilità Tecnico Economica (PFTE) nonché l’attività di verifica della progettazione. L’ASM ha ritenuto opportuno affidare, a ciascun professionista, individuato tramite gli Accordi Quadro Invitalia, oltre al PFTE anche la redazione del Progetto Definitivo al fine di residuare, con l’appalto integrato, la sola Progettazione Esecutiva: tutto ciò a garanzia delle scelte progettuali (tecnico-economiche) in quanto non riservate in toto all’esecutore dei lavori.  

Saranno invece due le Centrali Operative Territoriali e verranno realizzate a Matera (presso la sede ASM di Via Montescaglioso) e a Policoro (presso il distretto sanitario). Le Centrali Operative Territoriali (COT) svolgono una funzione di coordinamento della presa in carico della persona e di raccordo tra servizi e professionisti coinvolti nei diversi setting assistenziali: attività territoriali, sanitarie e sociosanitarie, ospedaliere e dialoga con la rete dell’emergenza-urgenza di competenza ASP (Azienda Sanitaria di Potenza) in tutta la Regione, compreso il servizio Elisoccorso. 

“Con le risorse del PNRR – afferma il Direttore Generale dell’ASM, Sabrina Pulvirenti- l’Azienda Sanitaria Locale di Matera si doterà di ulteriori strutture articolate sul territorio che miglioreranno l’efficienza complessiva e l’offerta dei servizi sanitari. Tutte le procedure amministrative procedono speditamente, secondo il cronoprogramma, e nel giro di qualche mese, partiranno già i primi cantieri. Con grande determinazione stiamo portando avanti il nuovo modello organizzativo per la rete di assistenza territoriale in grado di recepire gli standard strutturali, tecnologici e organizzativi, come da Decreto Ministeriale 77, e dunque una risposta adeguata ai nostri cittadini”.  

Il progetto delle COT è stato redatto mediante professionalità interne all'ASM ed è in fase di espletamento la gara per l'individuazione dell'operatore economico che realizzerà le opere mediante l'appalto integrato. Attraverso l'integrazione dell'assistenza sanitaria domiciliare con interventi di tipo sociale sarà possibile raggiungere la piena autonomia e indipendenza della persona anziana o disabile presso la propria abitazione, riducendo il rischio di ricoveri inappropriati. Ciò sarà possibile anche grazie all'introduzione di strumenti di telemedicina e telemonitoraggio che beneficeranno di fondi PNRR dedicati. 

Pubblicato il 
La data è riferita alla creazione della seguente pagina.
Aggiornato il 
La data riferita all'aggiornamento della presente pagina non esaurisce
l'aggiornamento dei singoli record a cui accede,
che hanno dinamiche autonome.
Risultato (901 valutazioni)